Projects
INFO
CONTACT
PAINTING
Projects
INFO
CONTACT
PAINTING
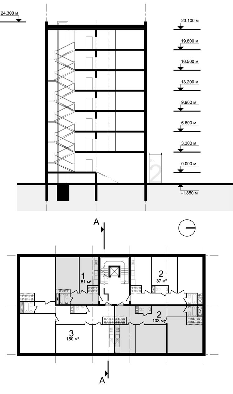
Skolkovo technopark D2 apartment residences
Skolkovo technopark D2 apartment residences competition project
↑
Back to Top